Prodej rodinného domu Horní Jirčany
19.990 000 Kč
Detailní informace
Energetická třída

Stručný popis
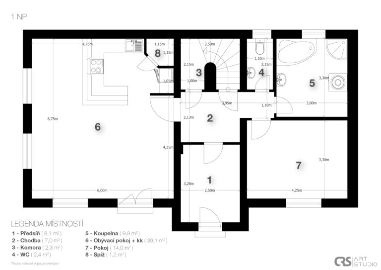
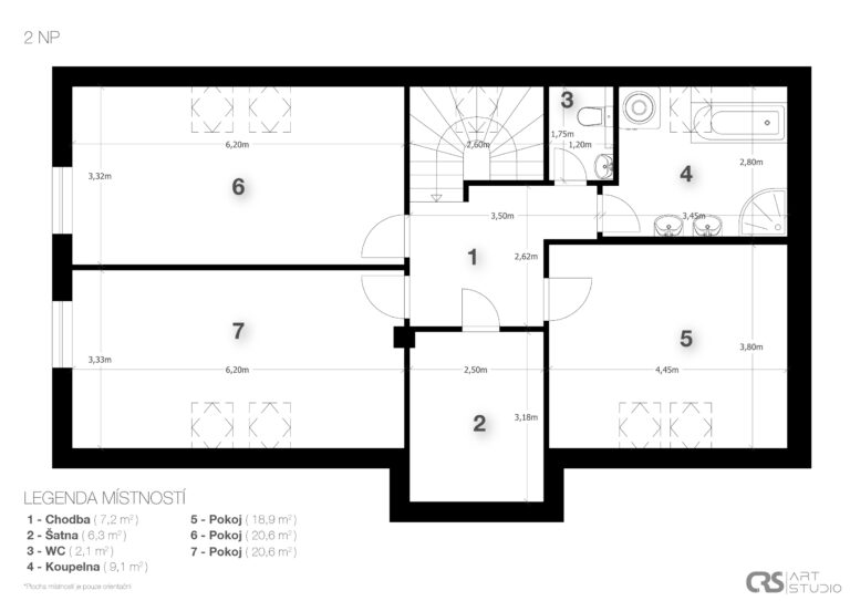
Nabízíme vám ke koupi rozestavěný rodinný dům v Horních Jirčanech u Jesenice. Stavba se nachází na souboru pozemků, které mají celkovou výměru 1246 m2. Původní stavba domu byla odstraněna a na místě vystavěna hrubá stavba domu o dvou obytných patrech. Dispozice stavby je 5 + KK s obytnou plochou 168 m2. Objekt je postaven z obvodového zdiva Ytong Lambda, stropy jsou z keramického systému Miako, schodiště do patra je železobetonové. Stavební povolení je platné do roku 2027. Podle projektu je navržen jako hlavní zdroj vytápění kotel na biomasu, umístění technologie je plánováno ve vedlejší hospodářské budově, která sousedí s hlavní stavbou. Vedlejším zdrojem vytápění bude krbová vložka umístěná v obývacím pokoji.
Pitná voda bude čerpána z vrtané studny, v současnou chvíli je realizován průzkumný vrt. Dalším zdrojem vody je původní kopaná studna. Splašková voda bude napojena na kanalizaci.
Na dům navazuje původní hospodářská část, která je určena k rekonstrukci a může mít více možností k využití. Další stavbou je objekt bez čp/če v přední části pozemku.
V Horních Jirčanech je základní občanská vybavenost, kompletní se nachází v blízké Jesenici. Je zde velmi dobrá dopravní dostupnost do Prahy a napojení na Pražský okruh (D0) a dálnici D1. pro více informací kontaktujte makléře.

Ing. Lukáš Soukenka
Půdorys nemovitosti




Máte zájem o prohlídku nemovitosti?
































